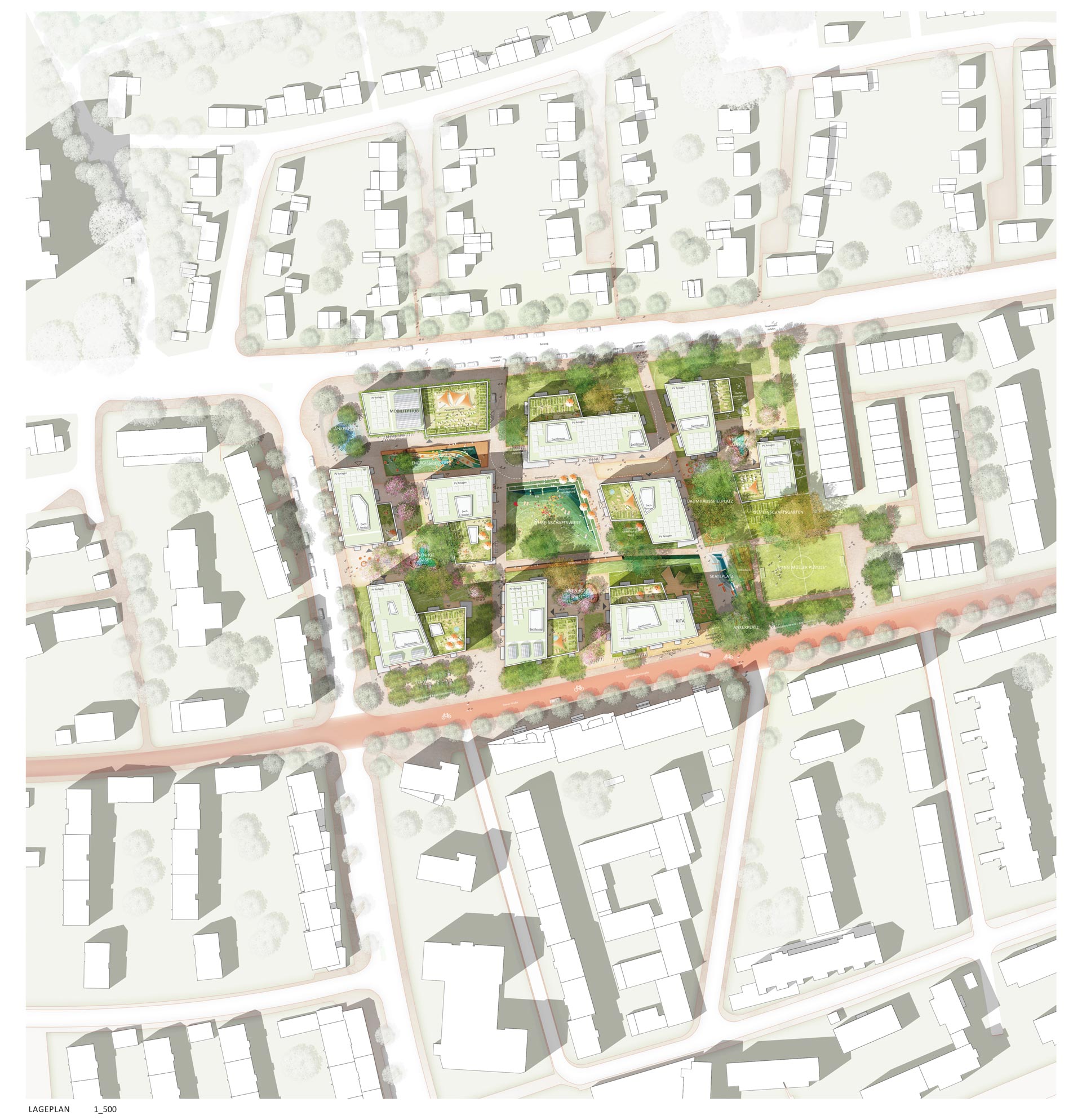
Quartier am Rotweg, Stuttgart, Deutschland
Auf einem Areal von ca. 2 ha entsteht ein Quartier mit 10 Gebäude (3-7 Geschossen) und ca. 40.000 m² BGF in Holz-Hybridbauweise - Stahlbeton-Skelett mit nichttragender Holzrahmen Außenwand und Holzfassaden und folgenden Nutzungen: über 220 Mietwohnungen, eine inklusive Kindertagesstätte, Pflege-Wohngemeinschaften, Gemeinschaftsräumen, Büros der Genossenschaften, Gastronomie und weitere Raumangebote für gewerbliche Nutzungen
Das neue Quartier am Rotweg fördert das genossenschaftliche Zusammenleben in einem nachhaltig entwickelten städtebaulichen Umfeld. Es zeigt gemeinsam mit der Internationalen Bauausstellung IBA’27, wie Wohnen der Zukunft in Stuttgart aussehen kann. Das Quartier Am Rotweg ist ein wichtiges Projekt der IBA’27. Es entsteht ein sozial, ökologisch und ökonomisch nachhaltiges Wohnquartier mit über 220 Mietwohnungen, einer inklusiven Kindertagesstätte, Pflege-Wohngemeinschaften, Gemeinschaftsräumen sowie Gastronomie und weiteren Angeboten, die das Quartier zu einem lebendigen und vielfältigen Ort machen. Das Quartier zeichnet sich durch seine hohen städtebaulichen Qualitäten und einen großzügigen Freiraum aus, der den Bewohnerinnen und Bewohnern sowie der gesamten Nachbarschaft zugutekommt.
Vom Haus der Zukunft (IBA 1927) zur Nachbarschaft der Zukunft (IBA 2027)
In den 1920er Jahren suchte die IBA nach Antworten auf das Haus der Zukunft, ein neues Wohnen und damit verbunden eine neue Ästhetik des Bauens. 100 Jahre später suchen wir im Rahmen der IBA wieder nach Neuem, doch die Themen haben sich gewandelt. Heute suchen wir nach neuen Formen des Zusammenlebens im Quartier, nach neuen Verknüpfungen von Wohnen und Arbeiten, sowie einer vielfältigen Nutzung von Grün- und Freiräumen für ein angenehmes Stadtklima. All diese Aspekte spielen eine Rolle dabei, ein krisenfestes Quartier für ein selbstbestimmtes Leben im genossenschaftlichen Quartier am Rotweg zu schaffen.
Transsolar hat das Projekt im Quartiers- und Gebäudemaßstab hinsichtlich Energie- und Klimakonzeption, sowie Besonnungsqualität im Innen- und Außenraum beraten.

