George Brown College – Limberlost Place (zuvor “The Arbour”), Toronto, ON, Kanada
            Der jüngste Erweiterungsbau des George Brown College, Limberlost Place (zuvor “The Arbour”), wird das erste institutionelle Gebäude aus Massivholz in Ontario sein. The Arbour (die Laube) wird gleichfalls Kanadas erstes Holzhochhaus sein. Es soll dem Austausch von Erfahrungen und Ideen dienen und Erkenntnisse bei der Erforschung des Themas Massivholzbau liefern.
Der 10-geschossige Baukörper ist als Teil des Waterfront Campus geplant; der preisgekrönte Entwurf entstammt einem internationalen Wettbewerb.
Das Gebäude beherbergt eine beträchtliche Anzahl von Unterrichtsräumen. Die George Brown's School of Computer Technology wird darin untergebracht. Nach Abschluss des Projekts lernen dort Studenten und Forscher, wie man klimafreundliche Gebäude plant, baut, betreibt und überwacht.
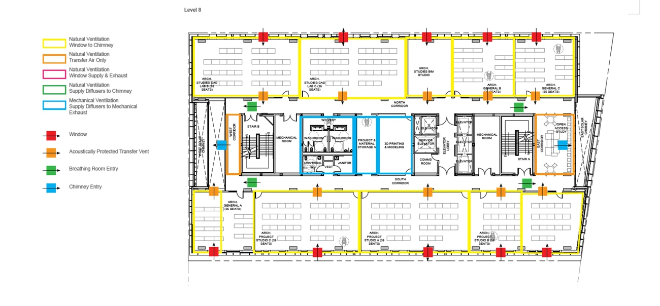
In Zusammenarbeit mit dem Team entwarf Transsolar eine klimafreundliche Fassade mit einem integrierten Lüftungskonzept, das die natürliche Belüftung aller Schulungsräume ermöglicht und diese zugleich gut mit Tageslicht versorgt.
Das Design zeichnet sich durch ein steiles Dach und viele Verglasungen aus, die die Konstruktion aus Massivholz zur Geltung bringen.
Die Struktur von Limberlost ist für eine gezielte natürliche Belüftung ausgelegt. Solarkamine liefern den Antrieb, sie erzeugen eine natürliche Konvektion. Die dort aufsteigende Luft zieht aus dem Gebäudeinneren frische Luft nach oben, die dabei zwei „Lungenräume“ durchströmt.
Im zentralen Atrium bildet ein Labyrinth aus offenen Laufstegen und Treppen die Verkehrswege.
Das Gebäude verfügt außerdem über Doppelböden für mechanische Belüftung. Für thermische Behaglichkeit sorgen Strahlplatten zum Heizen und Kühlen sowie dreifach verglaste Fenster und Deckenventilatoren in fast allen Räumen.
Der Bau von Limberlost place hat 2021 begonnen.
2024 CTBUH Innovation Award 2024 Award of Excellence
2024 CTBUH Structure Award 2024 Award of Excellence
2023 Royal Architectural Institute of Canada (RAIC) Research and Innovation in Architecture Award!
2019 Azure Magazine Award Unbuilt Buildings
2019 MIPIM and Architectural Review Future Project Award – Sustainability Prize
2018 Rethinking the Future, Architecture + Construction Design Award – Institutional Concept
2018 Canadian Architect Award of Excellence
