Bâtiment Résidentiel et de Séminaires Bundwerkstadel, Tuntenhausen, Allemagne
La notion de 'Stadel' vient du dialecte bavarois/autrichien et désigne un bâtiment agricole qui sert d'entrepôt ou de stockage de matériel. 'Bundwerk' est un terme de menuiserie et de l’architecture rurale provenant de la même région. Ce 'Bundwerkstadel' datant de 1773 a été stocké en centaines de pièces détachées pendant plus de 40 ans, et a maintenant été minutieusement reconstruit dans un nouvel emplacement.
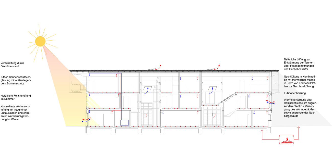
L'intérieur d’origine était un volume sans cloisons ni plafonds. Dans le 'Bundwerk', les planches à l'intérieur servaient uniquement de protection contre les intempéries, et non d'enveloppe thermique. Un bon accès à la lumière du jour à l'intérieur n'était également pas requis à cette époque. Cette enveloppe esthétique a été transformée en habitation et centre de séminaires tout en conservant l'essence même du savoir-faire artisanal. Créer des conditions de vie confortables et saines à tout moment de l'année, limiter les consommations d'énergie ainsi que les émissions de CO2 au minimum ont été les défis principaux qu’il a fallu relever.
Le concept énergétique et climatique repose ainsi largement sur des mesures passives. En été, les débords de toit combinés aux protections solaires extérieures réduisent les apports solaires dans le bâtiment, qui peut être entièrement ventilé naturellement. Une ventilation nocturne efficace combinée à la masse thermique des plaques de plâtre armé de fibres de cellulose Fermacell permet de décharger la chaleur accumulée pendant la journée et d’avoir ainsi des températures intérieures agréables, même lorsque les températures extérieures sont élevées. Le système de ventilation mécanique fournit aux logements du bâtiment suffisamment d'air frais (sans créer de courant d'air en hiver) pour obtenir une qualité optimale de l’air et fonctionne avec une récupération de chaleur optimale (80%).
Un plancher chauffant alimenté à basse température assure le chauffage des espaces. La chaleur est fournie par une chaudière à pellets située dans la grange adjacente. Le bois, en tant que ressource renouvelable et synonyme de durabilité, permet ainsi d’émettre un minimum de CO2 pour la production de chaleur.



