Extension de l'école professionnelle tyrolienne de photographie, d'optique et d'acoustique auditive, Hall, Autriche
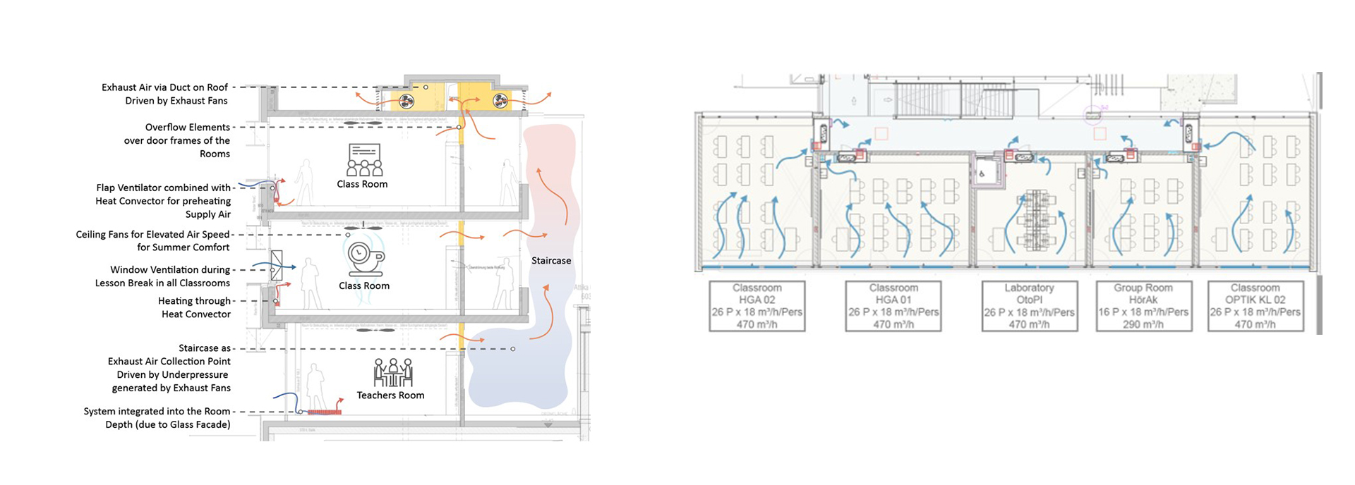
L'école professionnelle spécialisée a été rénovée et agrandie avec une nouvelle partie de bâtiment en bois. Le concept climatique et énergétique de l'extension vise à créer un climat intérieur confortable, autorégulé et robuste en premier lieu grâce à des mesures passives telles que la qualité des façades et la ventilation naturelle. Il se contente de peu de technique et n'intervient pas dans l'aspect architectural. Dans les salles de classe de l’extension orientée vers le sud, des éléments d’ombrage horizontaux fixes assurent beaucoup de lumière du jour avec de faibles charges solaires. Des ventilateurs de plafond dans les salles de classe assurent le mouvement de l'air afin d'améliorer le confort thermique même sans refroidissement actif pendant les chaudes journées d'été.
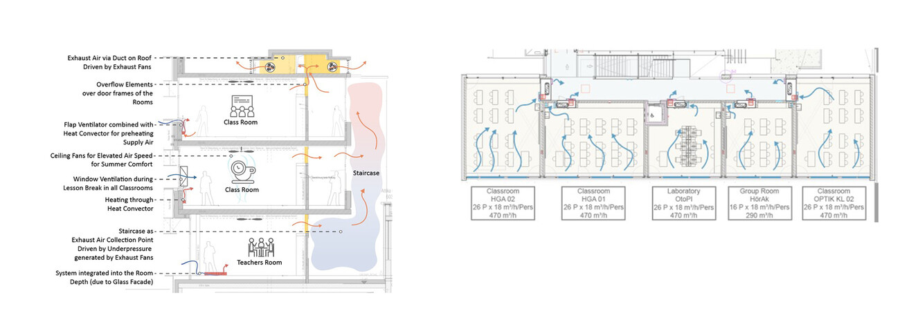
La ventilation de base est assurée par des éléments d’amenée d’air décentralisés intégrés à la façade, avec préchauffage de l’air frais par des convecteurs de chauffage. La régulation de la ventilation de base d’environ 18 m³/h par personne se fait par des détecteurs de présence, de sorte que pendant la période de chauffage, l’air frais n’est chauffé que lorsqu’il est nécessaire dans les salles de classe. Une aération supplémentaire par des fenêtres à battants vers le changement d'heure permet d'obtenir une très bonne qualité d'air. L'air vicié est dirigé vers les couloirs de l'étage au moyen d'éléments de débordement acoustiques, où il est aspiré par des ventilateurs d'extraction situés sur le toit et soutenus par la poussée naturelle de la cheminée.
Ce système garantit une ventilation de base confortable, même en hiver, malgré une faible utilisation de la technique. Au rez-de-chaussée, en raison des pertes de chaleur plus importantes dues à la proportion élevée de vitrage, un chauffage par le sol avec une régulation individuelle par pièce a été installé en plus des convecteurs de chauffage.
La gestion technique du bâtiment enregistre la température et la concentration de CO2 pour chaque salle de classe, ce qui permet de contrôler et de garantir un bon confort thermique et une haute qualité de l’air pendant le fonctionnement.
Dans l'atrium du bâtiment existant, un vitrage de toit avec une micro-grille de protection solaire intégrée aux vitres empêche la surchauffe due au rayonnement solaire direct et garantit en même temps un bon apport de lumière du jour. Les ouvertures sous le toit de l'atrium et les ouvertures de ventilation au rez-de-chaussée et au premier étage permettent une ventilation nocturne efficace entre les étages ainsi qu'une évacuation naturelle de l'air en cas de températures élevées dans la partie supérieure de l'atrium.
Le bâtiment scolaire est alimenté en énergie de chauffage par le chauffage urbain local, provenant en grande partie de la biomasse durable. Une installation photovoltaïque sur le toit plat de l'extension produit plus d'énergie qu'il n'en faut pour le fonctionnement du bâtiment et conduit à un bilan d'émissions de CO2 négatif, ce qui fait de l'extension le premier bâtiment scolaire à bilan climatique positif au Tyrol.
Au cours des prochaines années, un suivi sera effectué par Transsolar afin de vérifier les objectifs de confort et de durabilité et d'optimiser davantage le fonctionnement du bâtiment.
L'extension "climatiquement positive" de l'école professionnelle tyrolienne de photographie, d'optique et d'audiologie à Hall, une technique simple avec un grand confort d'utilisation, un "fleuron du paysage éducatif tyrolien".








