Extension of the Tyrolean Vocational School for Photography, Optics and Hearing Acoustics, Hall, Austria
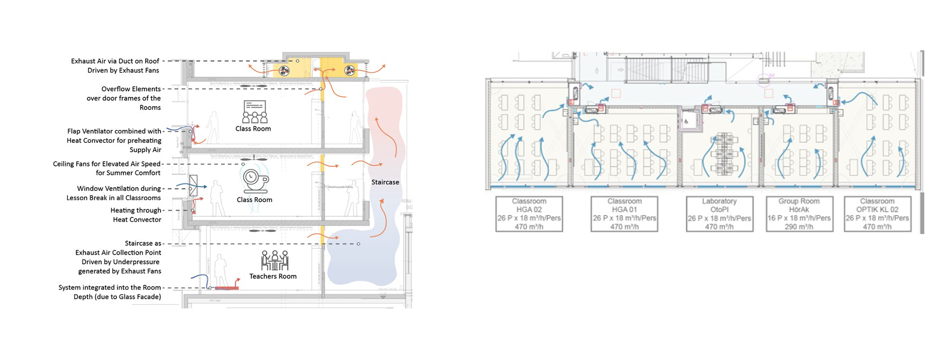
The vocational school was renovated and extended with a new building section in timber construction. The climate and energy concept of the extension aims to create a comfortable, self-regulating and robust indoor climate primarily with passive measures such as facade quality and natural ventilation. The building operates with little technology and the concept doesn’t interfer with the architectural appearance. In the classrooms of the south-facing addition, fixed horizontal shading elements provide ample daylight with low solar loads. Ceiling fans in the classrooms provide air movement to improve thermal comfort on warm summer days, even without active cooling.
Basic ventilation is provided via façade-integrated, decentralized supply air elements with preheating of the fresh air via heating convectors. The basic ventilation of approx. 18 m³/h per person is controlled via presence detectors so that fresh air is only heated during the heating period when it is actually needed in the classrooms. Additional shock ventilation by opening the windows during breaks lead to a excellent air quality. The exhaust air is directed into the corridors that span over several floors by overflow elements, which are also acoustically effective. There, the air is extracted by exhaust fans on the roof, supported by a natural chimney lift. This system ensures comfortable basic ventilation even in winter, despite the low use of technology. On the first floor, due to higher heat losses caused by the high proportion of glazing, in addition to the heating convectors, underfloor heating with individual room control is installed.
The building control system records the temperature and CO2 concentration for each classroom, so that good thermal comfort and high air quality can be monitored and ensured during operation.
In the atrium of the original building, roof glazing with a pane-integrated micro sunshade louvre prevents overheating due to direct solar radiation, but at the same time ensures a good supply of daylight. Opening flaps below the atrium roof and air vents on the ground- and first floor, allow efficient night ventilation across all floors, and also natural ventilation when air temperatures are high in the upper atrium area.
Local district heating from mostly sustainable biomass supplies the school building with heating energy. A PV system on the flat roof of the building extension generates more energy than needed for the buildings’ operation and leads to a negative CO2 emission balance, making the extension the first climate-positive school building in Tyrol. In the next few years, Transsolar will monitor the comfort and sustainability targets to further optimize the building's operation.
The decarbonized "climate-positive" extension of the Tyrolean Vocational School for Photography, Optics and Hearing Acoustics in Hall. Simple technology with high user comfort, a "flagship of the Tyrolean educational landscape".








