Neubau Universitäts-Kinderspital, Zürich, Schweiz
Das Akutspital ist das größte Krankenhaus für die medizinische Versorgung von Kindern und Jugendlichen in der Schweiz. Der bisherige Standort in Hottingen genügte jedoch in Bezug auf Platzverhältnisse und Infrastruktur nicht mehr den heutigen Anforderungen. So gewann zur Realisierung eines Neubaus in der Lengg das Architekturbüro Herzog & de Meuron im Mai 2012 das zweistufige Wettbewerbsverfahren.
Das neue Spital besteht aus zwei unterschiedlich gestalteten Baukörpern.
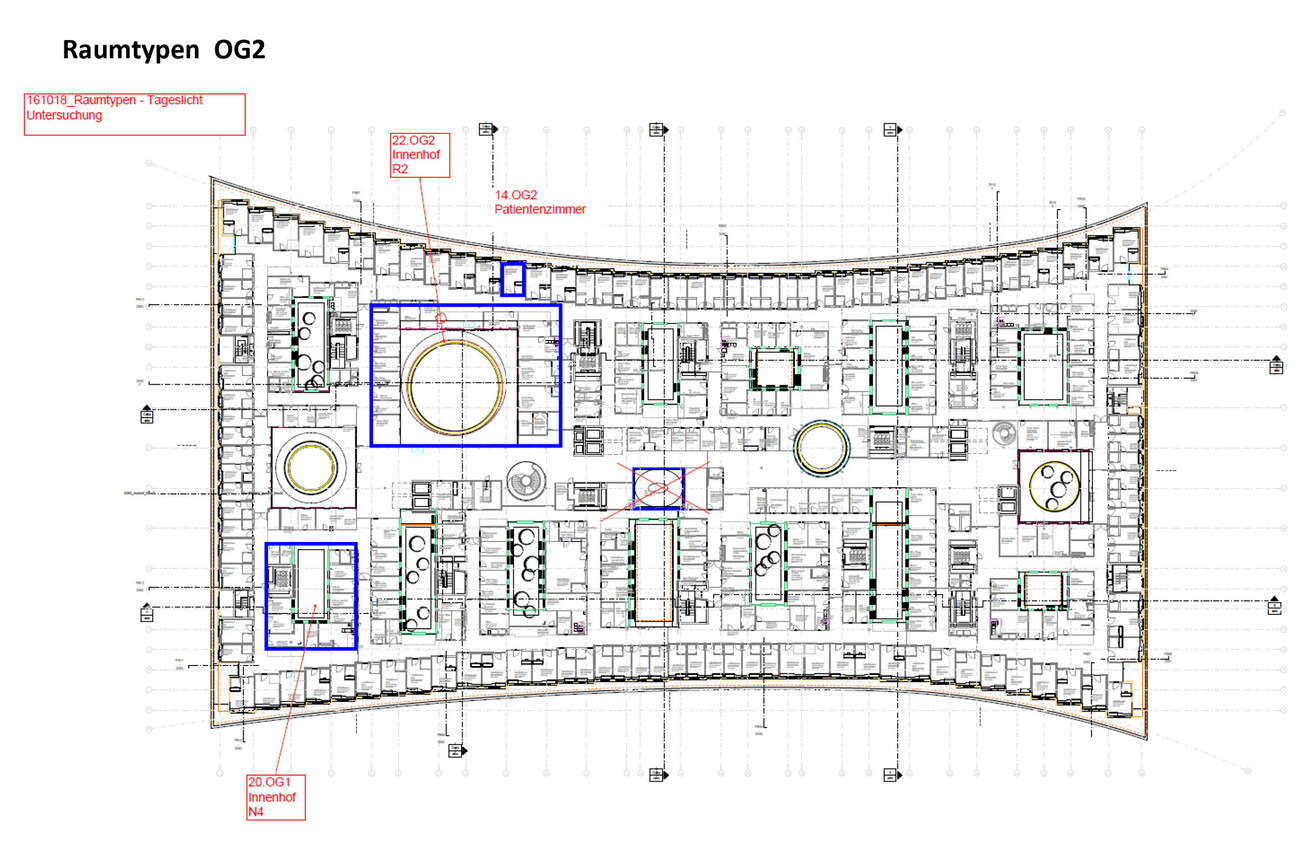
Das Akutspital auf dem Areal Süd ist als flacher dreigeschossiger Quader konzipiert. Vor- und zurückspringende Geschosse und eine durch Holzstrukturen gegliederte Fassade bestimmt das äußere Erscheinungsbild des Baus. 114 Einzelzimmer befinden sich auf dem Dach des Akutspitals. Im Inneren ist der Baukörper durch eine Folge von begrünten Innenhöfen gebrochen, die Tageslicht ins Gebäude leiten.
Vier interdisziplinäre Behandlungszentren sind hier untergebracht und ermöglichen die medizinische Versorgung in unmittelbarer Nähe zur Unterbringung.
Ein unterirdischer Gang verbindet das Krankenhaus mit dem zweiten Gebäude, dem ebenfalls neuen, zylindrischen „LLF-Rundbau“ auf dem Areal Nord. Auf sieben oberirdischen Geschossen ist hier alles auf Zusammenarbeit der Funktionen Labor, Lehre und Forschung ausgelegt. Entlang des Perimeters orientieren sich etwa 600 medizinische und administrative Arbeitsplätze nach außen, zu den Innenhöfen liegen die Behandlungsräume.
Unter dem zentralen Raum befinden sich im EG drei Hörsäle, die sich mit Foyer und Café zu einem großen Veranstaltungsort zusammenschalten lassen. Weitere Seminarräume ergänzen das Raumangebot.
In Bezug auf seine mannigfaltigen Nutzungen ist insbesondere das Akutspital eher mit einer Kleinstadt als mit einem solitären Gebäude zu vergleichen. Dabei setzte sich das Planungsteam das Ziel, eine sogenannte ‚Healing Architecture‘ zu verwirklichen. Das heißt, es galt neben der architektonischen Gestaltung des Gebäudes und der Raumkonzeptionen auch für jede Nutzung, eine auf das Energiekonzept abgestimmte Behaglichkeitskonzeption auszuarbeiten, die vorrangig die Gesundung der jungen PatientInnen fördert.
Grundlegende Voraussetzungen hierfür sind atmosphärisch attraktive Räume, die Geborgenheit vermitteln, einen hohen Außenbezug gewährleisten und dabei für eine optimale Behaglichkeit in Bezug auf Licht, Luft und Temperatur sorgen.
Insbesondere für die Patientenzimmer resultierte ein zum Spielen anregender „Hortus“, mit haptisch interessanten, natürlichen Materialien, großzügigen Verglasungen und kindersicheren Fassadenöffnungen für eine hohe Tageslichtverfügbarkeit, hohe Luftqualitäten sowie attraktive Ausblicke für PatientInnen und begleitende Bezugspersonen.
In einem anspruchsvollen, iterativen und integralen Planungsprozess hat Transsolar die hierfür erforderlichen umfassenden Tageslichtsimulationen sowie dynamisch-thermischen Analysen durchgeführt. Als messbare Werte sind optimale Tageslichtversorgungen, hohe Luftgüten sowie für die vielfältigen Nutzungszonen in beiden Baukörpern optimale thermische und hygrische Behaglichkeiten das Ergebnis.
Wo immer nach dem Nutzungsprofil möglich, gewährleisten Fenster eine unterstützende natürliche Lüftung. Eine zentrale mechanische Lüftung dient der Grundlüftung bei Einhaltung der nutzungsspezifisch physiologisch sinnvollen Temperatur- und Feuchtebereichen.
Das eigentliche Heizen und Kühlen innerhalb der Zonen erfolgt mittels thermisch aktivierten Boden- oder Deckenflächen; optimal ausgelegt für eine die Genesung fördernde Umgebung – wo erforderlich durch CFD-Simulationen validiert.
In Verbindung mit ausreichend dimensionierten Glasflächen gewährleisten außenliegende, bewegliche Sonnenschutzsysteme und zum Teil dynamische Verglasungen den erforderlichen sommerlichen Wärmeschutz und zugleich gute Tageslichtverhältnisse im Innern. Entsprechende Nachweise erfolgten basierend auf den SGNI-Anforderungen. Im Falle des Energiekonzeptes zeigte sich durch Lastgangsimulationen, dass mit saisonalem Wärmeshift mit Hilfe von über 23.000 lfdm geothermischer Sonden in Kombination mit reversiblen Wärmepumpensystemen und zuzüglich 2.800 m² Dach-Photovoltaik allein die angestrebte CO₂-Neutralität beider Gebäude nicht zu erreichen ist. Zusätzlich muss daher auf die regenerativen Endenergieträger Biogas und Grünstrom aus den öffentlichen Netzen zurückgegriffen werden.





